pregled nekretnine ID: 367361
prodaja

108m² 399.600€
Beograd, Voždovac, Koste Jovanovića

Objavljen: 23.02.2026. / Izmenjen: 23.02.2026.


Tip: stan

Cena: 399600.00 EUR

Površina: 108.00 m2

Grad: Beograd

Opština: Voždovac

Ulica: Koste Jovanovića

Sprat: 1

Spratnost: 1

Soba: 4.5

Godina izgradnje: 1972

Prijavi problem  |  Pošalji na e-mail


Kontakt:

Moj Kvadrat doo

011/334 88 36

065/303 94 39

http://www.kvadratnekretnine.com

Opis:

  • Uknjiženo
  • Kanalizacija
  • Terasa

Voždovac, Činovnička kolonija – Koste Jovanovića

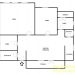
4.5, 108m2 (dve terase 13m2), 1/1, TA

Prodaje se odličan, četvoroiposoban stan, četvorostrano orijentisan, sa visinom plafona od 3 metra idealan za porodično stanovanje u najlepšoj ulici na Voždovcu.

Prostorije: dnevni boravak sa izlazom na terasu, kuhinja sa prirodnom ventilacijom, tri spavaće sobe, mala soba sa izlazom na drugu terasu i kupatilo sa prirodnom ventilacijom.

U stanu postoji mogućnost ugradnje kamina, a gas postoji u zgradi.

Stan je za sređivanje.

Uknjižen na 108m2.

Agencijska provizija 2%.

Agent Vojka Joksović: 064/55-55-196 (licenca br. 1790)






0/1000